Die Nutzung dieser Seite ist ohne JavaScript nicht möglich. Bitte aktualisieren Sie Ihren Browser.

Erweiterung der integrativen DRK-Kindertagesstätte "Cläre Grüneisen Haus"

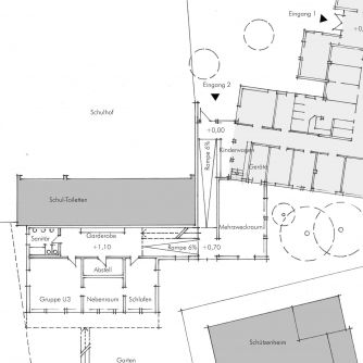
Der Neubau erweitert einen bestehenden, integrativen Kindergarten in Bonn- Ippendorf auf schwierigem Grundstückszuschnitt mit Hanglage. Ein neuer Hauptzugang ordnet die Erschliessungswege. Mit Rampen werden Höhendifferenzen überwunden und neue Erlebnisräume geschaffen.

Projektdaten

Adresse
Am Kümpel 2
53127 Bonn-Ippendorf

Bauzeit
Erweiterung 2014

Bauherr
DRK Kreisverband Bonn e.V.

Planung
Grützner Architekten

Grundriss EG Foto: Manos Meisen Foto: Manos Meisen Foto: Manos Meisen Foto: Manos Meisen Foto: Manos Meisen
1 2 3 4 5 6